Ihr neues Büro im historischem Gebäude – zentrale Lage!

Frankfurter Straße 1, 63225 Langen, Bürofläche zur Miete

Kontaktdaten

Objektdaten

  • Objekt-ID
    Büro_F1_EGrechts
  • Objekttypen
    Büro/Praxis, Bürofläche
  • Adresse
    Frankfurter Straße 1
    63225 Langen
  • Etagen im Haus
    EG
  • Bürofläche ca.
    73 m²
  • Küche
    Teeküche
  • Heizungsart
    Zentralheizung
  • Wesentlicher Energieträger
    Gas
  • Baujahr
    1878
  • Letzte Modernisierung
    1999
  • Zustand
    gepflegt
  • Ausstattung
    Standard
  • Stellplätze gesamt
    4
  • Kaution
    nach Vereinbarung
  • Nebenkosten
    4,00 EUR
  • Preis
    auf Anfrage

Ausstattung / Merkmale

  • ✓ Denkmalgeschützt
  • ✓ DV-Verkabelung
  • ✓ Klimatisiert
  • ✓ Teeküche

Energieausweis

  • Energieausweis
    nicht erforderlich

Objekt­beschreibung

Beschreibung

Die Bürofläche befindet sich im Erdgeschoß der denkmalgeschützten Liegenschaft, die in den 90er Jahren vollständig saniert wurde und nun moderne Büroräume beherbergt.

Bei dem historischen Gebäude handelt es sich um die "Alte Schule", die im Mittelalter als Zehnthof diente, und sich in zentraler Lage und direkter Nähe zum Wilhelm-Leuschner-Platz mit dem Vierröhrenbrunnen befindet.

Ausstattung

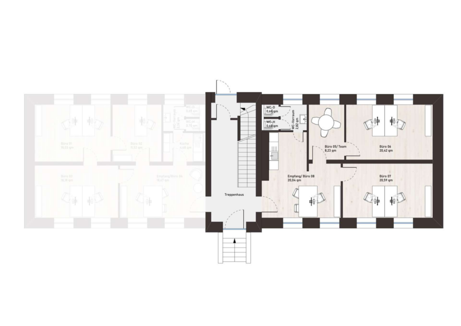
Die dargestellte Bürofläche erstreckt sich über den rechten Büroflügel im EG, der über das Treppenhaus erreichbar ist und für sich eine geschlossene Einheit darstellt. Die Fläche ist in drei größere und ein kleines Büro, 2 WCs, sowie einer Teeküche aufgeteilt.

Eine weitere Bürofläche mit fast gleicher Aufteilung steht im 1. Obergeschoß zur Verfügung.

Die Nebenkosten (netto) enthalten Heizkosten ohne Strom. Weitere Preise auf Anfrage.

Sonstiges

Alle Informationen zum Objekt erhalten wir vom Hauseigentümer. Für eventuelle Fehlinformationen übernehmen wir keine Haftung.

Das Exposé ist eine unverbindliche Vorinformation, Rechtsgrundlage ist einzig der gegengezeichnete Mietvertrag.

Bei Fragen stehen wir jederzeit zur Verfügung.

Bitte teilen Sie uns Ihre Mobilfunk- und Festnetznummer mit, damit wir Sie zwecks Vereinbarung eines Besichtigungstermins schnell erreichen können.

Lage

Langen ist ein beliebter und prosperierender Standort im Speckgürtel von Frankfurt und mit optimaler Lage im Rhein-Main Gebiet.

In fußläufiger Entfernung erreichen Sie den Lutherplatz bzw. die Bahnstraße, der zentralen Einkaufsststraße in Langen.

Flughafen 16 min | Fernbahnhof 8 min | Autobahn 5 min | Bus 2 min 

Sie sehen gerade einen Platzhalterinhalt von Google Maps. Um auf den eigentlichen Inhalt zuzugreifen, klicken Sie auf die Schaltfläche unten. Bitte beachten Sie, dass dabei Daten an Drittanbieter weitergegeben werden.

Mehr Informationen

Direktanfrage

* Pflichtangaben
 SSL-verschlüsselt
Darstellung der Immobilien mit WP-ImmoMakler und Daten aus

Kontakt

noctua advisors GmbH
Sophienblatt 40
24103 Kiel

Telefon: +49 (0) 431 259 40 – 500
info@noctua-advisors.de

noctua advisors GmbH
Neue Mainzer Straße 74
60311 Frankfurt am Main

info@noctua-advisors.de