92 m² Gewerbefläche in Ecklage Mörfelder Landstr /Schweizer Str – veredelter Rohbau, frei gestaltbar

Mörfelder Landstraße 82, 60598 Frankfurt am Main, Bürohaus zur Miete

Kontaktdaten

Objektdaten

  • Objekt-ID
    166721193
  • Objekttypen
    Büro/Praxis, Bürohaus
  • Adresse
    Mörfelder Landstraße 82
    60598 Frankfurt am Main
  • Bürofläche ca.
    92 m²
  • Kaution
    3 Brutto-Monatsmieten zzgl. MwSt.
  • Nebenkosten
    276,00 EUR
  • Preis
    auf Anfrage

Ausstattung / Merkmale

  • ✓ Keller

Energieausweis

  • Energieausweis
    nicht vorhanden

Objekt­beschreibung

Beschreibung

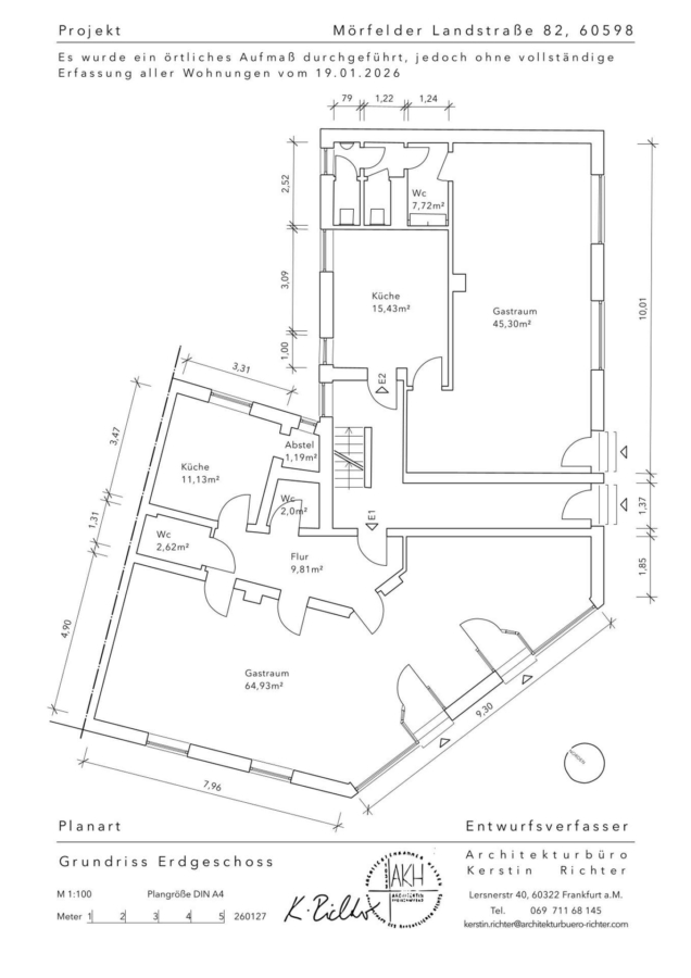
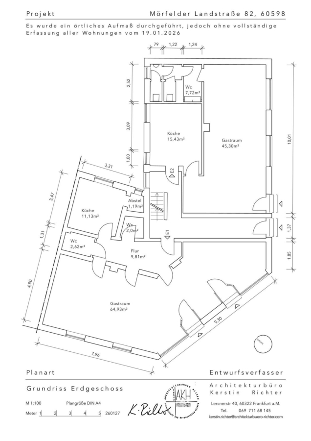
In prominenter Ecklage an der Mörfelder Landstraße 82 / Ecke Schweizer Straße bieten wir eine ca. 92 m² große Gewerbefläche im Erdgeschoss eines gepflegten Wohn- und Geschäftshauses an.
Die Einheit überzeugt durch eine großzügige Schaufensterfront über Eck, Deckenhöhen von ca. 3 Metern und einen eigenen Eingang direkt von der Straße. Die Fensterfront wird im Zuge der Vermietung komplett neu gestaltet – Sie haben die Möglichkeit, die Außenwirkung Ihres Geschäfts von Anfang an mitzubestimmen.
Die Übergabe erfolgt im veredelten Rohbau: Sie gestalten Grundriss, Materialien und Ausstattung vollständig nach Ihren Vorstellungen.
Ob als repräsentatives Büro, moderne Praxis, Agentur oder Showroom – die Ecklage mit hoher Passantenfrequenz und die flexible Raumgestaltung machen diese Fläche zum idealen Standort für Ihr Unternehmen.

Ausstattung

Individueller Ausbau nach Ihren Wünschen

  • Fläche: ca. 92 m² im Erdgeschoss, zusätzlich Kellerraum als Lagerfläche
  • Deckenhöhe: ca. 3 m – großzügig und repräsentativ
  • Zustand: Veredelter Rohbau (Estrich vorbereitet, Wände verputzt, Anschlüsse vorhanden)
  • Fensterfront: Großzügige Schaufensteranlage über Eck – wird im Zuge der Vermietung komplett erneuert. Hervorragende Sichtbarkeit und Tageslicht
  • Eingang: Eigener Zugang mit separatem Eingang direkt von der Straße
  • Sanitär/Teeküche: Anschlüsse vorbereitet, flexible Platzierung möglich

Sonstiges

Nettokaltmiete: ab 4.000 €/m² – abhängig von Ausbauvereinbarung und Mietlaufzeit.

Ausbau und Investitionsverteilung werden individuell zwischen Mieter und Vermieter abgestimmt.

Verfügbarkeit: Nach Absprache.

Interesse?

Senden Sie uns eine kurze Beschreibung Ihres Nutzungskonzepts. Wir laden Sie dann gerne zu einer persönlichen Besichtigung ein und besprechen die weiteren Schritte.

Wir freuen uns auf Ihre Anfrage!

Lage

Sachsenhausen – urban, zentral und hervorragend angebunden

Das Objekt liegt direkt an der Kreuzung Mörfelder Landstraße / Schweizer Straße, einer der frequentiertesten Achsen in Frankfurt-Sachsenhausen. Im selben Gebäude befindet sich bereits ein etabliertes italienisches Restaurant – der Standort profitiert von einer gewachsenen Kundenfrequenz und einem lebendigen urbanen Umfeld.
In der unmittelbaren Umgebung finden Sie ein vielfältiges Angebot an Gastronomie, Einzelhandel und Dienstleistungen.
Anbindung:
•Straßenbahnhaltestelle in unmittelbarer Nähe
•Südbahnhof (S-Bahn, U-Bahn, Regionalbahn) fußläufig erreichbar
•A3/A5 und Flughafen Frankfurt in ca. 10–15 Fahrminuten

Flughafen 15 min | Fernbahnhof 10 min | Autobahn 10 min | Bus 1 min 

Sie sehen gerade einen Platzhalterinhalt von Google Maps. Um auf den eigentlichen Inhalt zuzugreifen, klicken Sie auf die Schaltfläche unten. Bitte beachten Sie, dass dabei Daten an Drittanbieter weitergegeben werden.

Mehr Informationen

Direktanfrage

* Pflichtangaben
 SSL-verschlüsselt
Darstellung der Immobilien mit WP-ImmoMakler und Daten aus

Kontakt

noctua advisors GmbH
Sophienblatt 40
24103 Kiel

Telefon: +49 (0) 431 259 40 – 500
info@noctua-advisors.de

noctua advisors GmbH
Neue Mainzer Straße 74
60311 Frankfurt am Main

info@noctua-advisors.de