!!! Unikat am See – Selbstnutzer oder Kapitalanleger – Wunderschöne Wohnung im kernsanierten Altbau

Hessenring 43, 63071 Offenbach, Etagenwohnung zum Kauf

Kontaktdaten

Objektdaten

  • Objekt-ID
    LilyW26
  • Objekttypen
    Etagenwohnung, Wohnung
  • Adresse
    Hessenring 43
    63071 Offenbach
  • Etage
    1
  • Etagen im Haus
    5
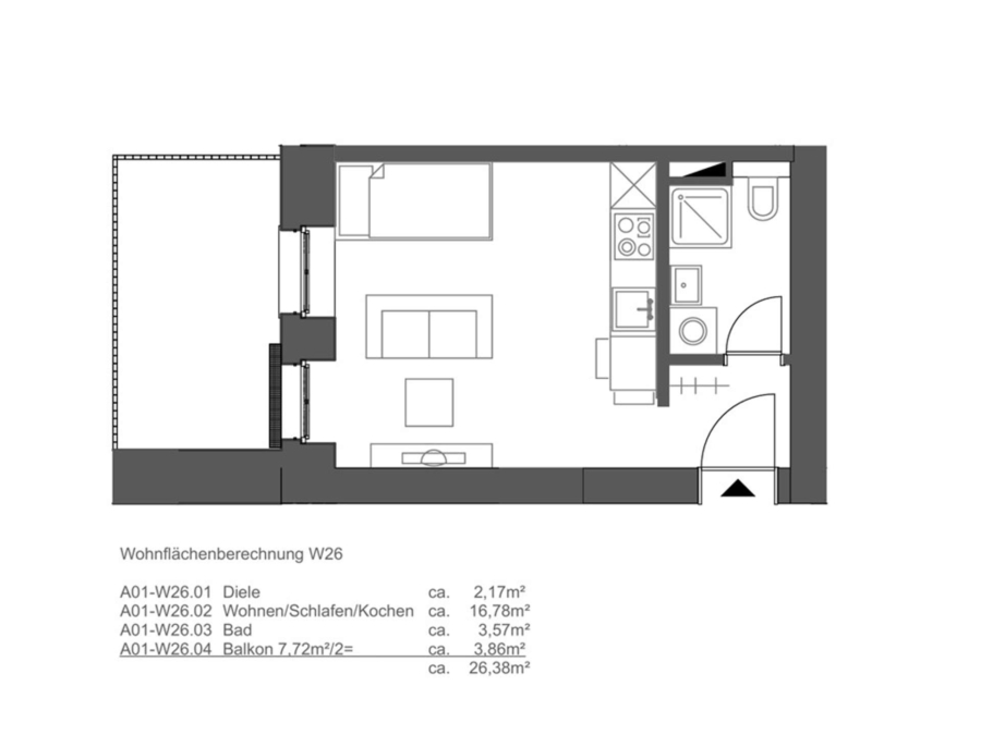
  • Wohnfläche ca.
    26 m²
  • Zimmer
    1
  • Schlafzimmer
    1
  • Badezimmer
    1
  • Wesentlicher Energieträger
    Fernwärme
  • Baujahr
    2021
  • Letzte Modernisierung
    2021
  • Zustand
    teilsaniert
  • Ausstattung
    Luxus
  • Hausgeld
    125,00 EUR
  • Kaufpreis
    137.500 EUR

Ausstattung / Merkmale

  • ✓ Balkon/Terrasse
  • ✓ Garten/Gartennutzung
  • ✓ Keller
  • ✓ Personenaufzug

Energieausweis

  • Energieausweistyp
    Bedarfs­ausweis
  • Ausstellungsdatum
    vor dem 1.5.2014
  • Baujahr lt. Energieausweis
    2021
  • Primärenergieträger
    Fernwärme, Nahwärme
  • Endenergie­bedarf
    86,00 kWh/(m²·a)
0 50 100 150 200 250 300 350 400+ Endenergiebedarf 86,00 kWh/(m²·a)

Objekt­beschreibung

Beschreibung

Das prachtvolle, 1877 erbaute historische Gebäude wurde vor 4 Jahren mit viel Liebe zum Detail saniert und es entstanden einzigartige Wohnungen in begehrter Lage. Sie wohnen ruhig im Grünen in einer Parkanlage, direkt an einem kleinen See und vis a vis zum Alten Schlachthof, Offenbachs Kunst- und Kulturtreffpunkt. Durch die Sanierung wurde der Altbau-Charme mit modernster Baukunst vereint. Die Wohnung wird allen Ansprüchen an gehobenem Wohnkomfort gerecht. Überzeugen Sie sich selbst und kommen mit uns zur Besichtigung.

Ausstattung

Wie stellen Sie sich Ihre Traumwohnung vor? Lichtdurchflutete, luftige Räume? Ein freier Blick in den blühenden Seegarten? Und dieses wunderbar entspannende "Endlich-zuhause-Gefühl"? Herzlichen Glückwunsch – Ihr Traum wird zur Realität!

Ausstattung-Highlights:

  • modernes Badezimmer mit großer Dusche
  • großer Balkon
  • hohe Deckenhöhen
  • hochwertiger Holzdielen-Boden und Fliesen
  • Fußbodenheizung
  • funktioneller, gut durchdachter Grundriss
  • große, bodentiefe, dreifach-verglaste Wärmeschutzfenster
  • Video-Gegensprechanlage mit Farbdisplay
  • Personenaufzug
  • Fernwärmeheizung
  • Lüftungskonzept
  • Cat 7 Verkabelung
  • hohe Energieeffizienz aufgrund modernster Gebäudetechnik
  • Kellerraum
  • Fahrradabstellmöglichkeiten direkt am Haus

Sonstiges

Die Wohnung wird für den Käufer provisionsfrei angeboten!
Alle Angaben wurden uns von Seiten des Eigentümers zur Verfügung gestellt. Wir bitten um Verständnis, dass wir für diese Angaben keine Gewähr übernehmen können.

Lage

Das Objekt liegt in einem beliebten und gewachsenen Wohnviertel Offenbachs. Hier lassen sich alle Bedürfnisse des alltäglichen Lebens erfüllen: Einkaufsmöglichkeiten, Restaurants, Cafes, sowie Kindergärten, Schulen, uvm. Durch die exzellenten Verkehrsanbindungen (Bahn, S-Bahn, Bus und Straßenbahn) ist die Innenstadt von Offenbach, das nur 7 km entfernte Frankfurt und auch der Flughafen schnell zu erreichen.

Sie sehen gerade einen Platzhalterinhalt von Google Maps. Um auf den eigentlichen Inhalt zuzugreifen, klicken Sie auf die Schaltfläche unten. Bitte beachten Sie, dass dabei Daten an Drittanbieter weitergegeben werden.

Mehr Informationen

Direktanfrage

* Pflichtangaben
 SSL-verschlüsselt
Darstellung der Immobilien mit WP-ImmoMakler und Daten aus

Kontakt

noctua advisors GmbH
Sophienblatt 40
24103 Kiel

Telefon: +49 (0) 431 259 40 – 500
info@noctua-advisors.de

noctua advisors GmbH
Neue Mainzer Straße 74
60311 Frankfurt am Main

info@noctua-advisors.de