Tolle 2,5-Zimmer-Penthouse-Wohnung mit Weitsicht

Kantstraße 9, 63067 Offenbach, Etagenwohnung zur Miete

Anlagen / Links

Kontaktdaten

Objektdaten

  • Objekt-ID
    OF-K9-9re-2602
  • Objekttypen
    Etagenwohnung, Wohnung
  • Adresse
    Kantstraße 9
    63067 Offenbach
  • Etage
    9
  • Etagen im Haus
    9
  • Wohnfläche ca.
    78 m²
  • Zimmer
    2,5
  • Schlafzimmer
    1
  • Badezimmer
    1
  • Wesentlicher Energieträger
    Fernwärme
  • Baujahr
    1958
  • Zustand
    teil-/vollrenoviert
  • Haustiere
    nach Vereinbarung
  • Garagen­stellplatz
    Stellplatzmiete: 80,00 EUR (Anzahl: 1)
  • Kaution
    3 Monatskaltmieten
  • Kaltmiete
    990,00 EUR
  • Nebenkosten
    275,00 EUR
  • Heizkosten
    in den Nebenkosten enthalten
  • Warmmiete
    1.265,00 EUR

Ausstattung / Merkmale

  • ✓ Balkon/Terrasse
  • ✓ Gäste-WC
  • ✓ Keller
  • ✓ Personenaufzug

Energieausweis

  • Energieausweistyp
    Verbrauchs­ausweis
  • Ausstellungsdatum
    vor dem 1.5.2014
  • Baujahr lt. Energieausweis
    1958
  • Primärenergieträger
    Fernwärme
  • Endenergie­verbrauch
    87,00 kWh/(m²·a)
0 50 100 150 200 250 300 350 400+ Endenergieverbrauch 87,00 kWh/(m²·a)

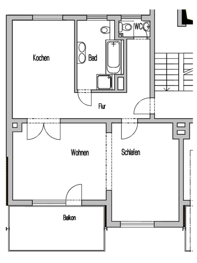
Objekt­beschreibung

Beschreibung

Gepflegtes Mehrfamilienhaus in sehr zentraler Lage in Offenbach.

Ausstattung

  • tolle Aussicht ins Grüne
  • große Wohnküche
  • großes modernes Tageslichtbad mit Badewanne
  • separate Toilette

Sonstiges

Alle Angaben zu den von uns angebotenen Objekten beruhen auf Informationen der jeweiligen Eigentümer. Wir übernehmen für diese Angaben keine Gewähr.

Im Mietvertrag wird eine Mindestlaufzeit von 24 Monaten und eine Staffelmiete vereinbart.

WICHTIG: Bitte senden Sie uns eine Anfrage über Immobilienscout24.de und geben bitte dabei Ihre mobile Telefonnummer an. Wir melden uns bei Ihnen, sobald ein Besichtigungstermin möglich ist. Vielen Dank!

Sie können das Bewerbungsverfahren verkürzen, in dem Sie die Bewerbungsunterlagen (als PDF-Datei in dieser Anzeige) für dieses Objekt, bereits im Vorfeld ausdrucken, vollständig ausfüllen und uns nach der Besichtigung unterschrieben per Email/Fax zurück schicken. Bitte fügen Sie auch Ihre Verdienstnachweise und Ihren Ausweis in Kopie bei.

Lage

Kantstraße in Offenbach. Unweit der S-Bahnstation Ledermuseum. Gute Anbindung an die öffentlichen Verkehrsmittel und die A661. Einkaufsmöglichkeiten des täglichen Bedarfs in direkter Nachbarschaft.

Sie sehen gerade einen Platzhalterinhalt von Google Maps. Um auf den eigentlichen Inhalt zuzugreifen, klicken Sie auf die Schaltfläche unten. Bitte beachten Sie, dass dabei Daten an Drittanbieter weitergegeben werden.

Mehr Informationen

Direktanfrage

* Pflichtangaben
 SSL-verschlüsselt
Darstellung der Immobilien mit WP-ImmoMakler und Daten aus

Kontakt

noctua advisors GmbH
Sophienblatt 40
24103 Kiel

Telefon: +49 (0) 431 259 40 – 500
info@noctua-advisors.de

noctua advisors GmbH
Neue Mainzer Straße 74
60311 Frankfurt am Main

info@noctua-advisors.de